Mieszkanie Lubliniec, Św. Mikołaja
Lubliniec Pokaż na mapie ›
Ogłoszenie archiwalne Wygasło: Niedziela, 05 Październik, 2025 12:43
310 000 zł
2385 zł/m2
Szczegóły ogłoszenia
- Kategoria: Mieszkania / Sprzedaż
- Powierzchnia:130 m2
- Liczba pokoi:2 pokoje
- Zabudowa:Kamienica
- Tech. budowy:Cegła
- Piętro :1 piętro
- Liczba pięter:Parterowy
- Rynek:Wtórny
- Sprzedaż:Pośrednik
- Cena: 310 000 zł / 2385 zł/m2
Opis oferty
Biuro nieruchomości BMC prezentuje ofertę obiektu idealnego dla osób poszukujących funkcjonalnego miejsca do zamieszkania oraz prowadzenia działalności w samym sercu miasta Lublińca.Ta kamienica o zwartej zabudowie oferuje wiele możliwości zarówno pod względem mieszkalnym, jak i komercyjnym.
Dane podstawowe:
- budynek 2 kondygnacyjny + poddasze
- dach drewniany kryty papą
- technologia tradycyjna z cegły
Lokalizacja:
- centrum miasta przy ul. Św. Mikołaja
- dojazd drogą wybrukowaną
Zlokalizowana w samym sercu miasta oferuje nie tylko doskonałą widoczność, ale również łatwy dostęp do wszystkich udogodnień miejskiego życia.
Znajduje się w bliskiej odległości od głównych arterii komunikacyjnych, co sprawia, że jest to idealne miejsce dla prowadzenia różnorodnych działalności gospodarczych.
Media:
- prąd
- wodociąg
- kanalizacja
- gaz
Działki:
- pow. 89m2
- pow. 92m2 stanowiąca udział
Funkcjonalność:
Kamienica składa się z dwóch kondygnacji, oferując kompleksowe rozwiązania zarówno dla osób szukających lokalu użytkowego, jak i mieszkania do zamieszkania.
Na parterze znajduje się:
- lokal użytkowy o pow. 54,20m2 z węzłem sanitarnym.
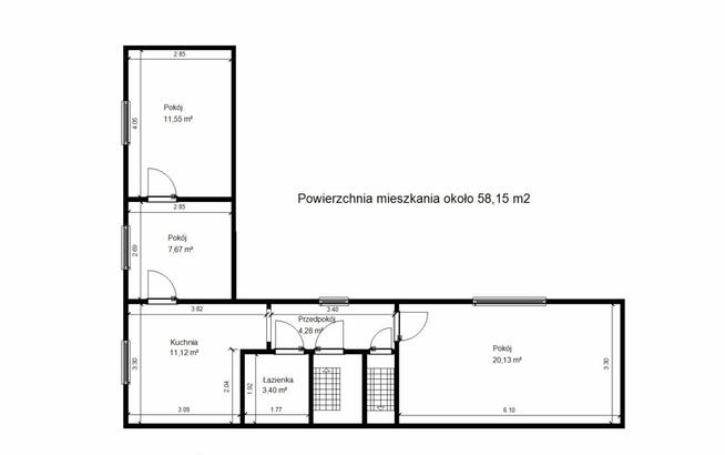
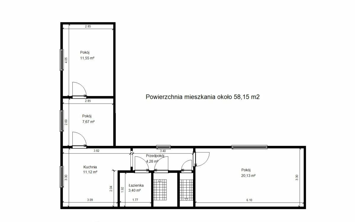
Piętro stanowi mieszkanie o powierzchni 58,15m2 składające się z
- 2 pokoje
- kuchnia o pow. 11,12m2
- łazienka o pow. 3,40m2
- przedpokój
Mieszkanie to jest gotowe do natychmiastowego zamieszkania, co czyni tę ofertę jeszcze bardziej atrakcyjną dla potencjalnych nabywców. Ogrzewane jest piecem gazowym dwufunkcyjnym.
Kamienica oferuje poddasze do zagospodarowania do własnej aranżacji.
Zalety:
1. Idealna lokalizacja:
Centralne położenie kamienicy zapewnia łatwy dostęp do klientów oraz wszelkich udogodnień miejskiego życia.
2. Funkcjonalność:
Zarówno lokal użytkowy, jak i mieszkanie oferują wygodne i przestronne pomieszczenia, gotowe do natychmiastowego użytkowania.
3. Potencjał inwestycyjny:
Dzięki możliwości prowadzenia różnorodnych działalności gospodarczych w lokalu użytkowym, ta nieruchomość stanowi doskonałą inwestycję zarówno dla osób poszukujących miejsca do zamieszkania, jak i dla przedsiębiorców.
Nie przegap tej wyjątkowej okazji!
Skontaktuj się z nami już dziś, aby dowiedzieć się więcej o tej atrakcyjnej nieruchomości.
Koszty ponoszone przez Kupującego przy zakupie nieruchomości:
Prowizja pośrednika: 3% + VAT (czyli 3,69% brutto, nie mniej jak 4.000 złotych) od ceny transakcyjnej - za obsługę transakcji przez biuro nieruchomości
Koszty notarialne i sądowe: taksa notarialna, opłata za wniosek do księgi wieczystej, wypisy aktu notarialnego,
Podatek PCC: 2% wartości transakcji.
Numer oferty: 693371
Sprawdź zainteresowanie tym ogłoszeniem
Wyświetlenia
Data dodania
Ostatnio widziany
Obserwujących
Wysłane zapytania
Odsłony telefonu
Powiadom o podobnych ogłoszeniach
Lokalizacja: Lubliniec
Kategoria: Nieruchomości » Mieszkania » Sprzedaż
Cena: od 263500 zł do 356500 zł Powierzchnia : od 111 m2 do 150 m2
Chcę otrzymywać powiadomienia o nowych ofertach
To ogłoszenie jest archiwalne i może być nieaktualne.
- Wypromuj ogłoszenie
- Zgłoś naruszenie
- Edytuj/usuń ogłoszenie
- Udostępnij ogłoszenie
- Dodaj na Facebook


























